Descrizione Immobile
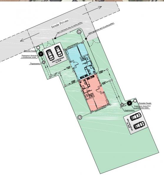
TERRENO EDIFICABILE di MQ 900
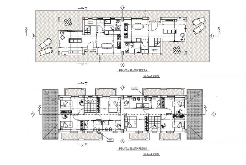
TERRENO EDIFICABILE di MQ 900 con possibilità di REALIZZARE una VILLA UNIFAMILIARE DI MQ 240 o BIFAMILIARE DI MQ 120 AD UNITA ABITATIVA

FONDI - QUERCE : A Soli 2 minuti dal centro di Fondi, proponiamo in vendita terreno EDIFICABILE di circa mq.900 con progetto in fase di presentazione. Il progetto prevede la costruzione di una villa singola di mq. 240 circa disposta su 2 livelli di mq 120 a livello oppure la realizzazione di una Bifamiliare di mq 120 circa ad unità abitativa disposta su 2 livelli di mq 60 a livello. Ottima Ubicazione. Il terreno può essere utilizzato per diverse finalità data l'eccellente ubicazione a pochi passi dal centro città ma allo stesso tempo immerso nel verde. OTTIMO ANCHE AD USO INVESTIMENTO. Per maggiori dettagli, non esitate a contattarci..... Euro 150.000,00 trattabili

CLASSE ENERGETICA ESENTE
Nel caso il presente annuncio sia di Vostro interesse e dovete anche vendere il Vostro immobile siamo a vostra disposizione per effettuare una valutazione o stima gratuita. Offriamo consulenza gratuita anche per richiesta di mutuo. Non esitate a contattarci saremo a vostra disposizione per soddisfare ogni vostra esigenza
    
    

Tipologia: Terreno Giardino: Si
Riferimento: F.T.BD Ascensore: Non definito
Vani: Non definito Terrazzo: Non definito
Bagni: Non definito Piano: Non definito
Mq: 900 Riscaldamento: Non definito
Posto Auto: Più di uno Climatizzatore: Non definito
Balcone: Non definito Stato: Non definito
Classe Energetica: Esente

Richiesta Informazioni